From Office to Healthcare

Central London (2016-18)

The DESIGN ETHOS of this institution prioritises creating DECLUTTERED spaces with a MINIMALIST AESTHETIC. This approach aims to cultivate a CALM sensory environment for the patient through the internal architecture.

By minimizing visual distractions and creating clean spaces, the design seeks to promote a sense of TRANQUILITY.

This is achieved through employing a limited palette of materials & colours to enhance the WELLBEING of patients, to reduce stress & anxiety and to expedite the process of HEALING & RECOVERY.

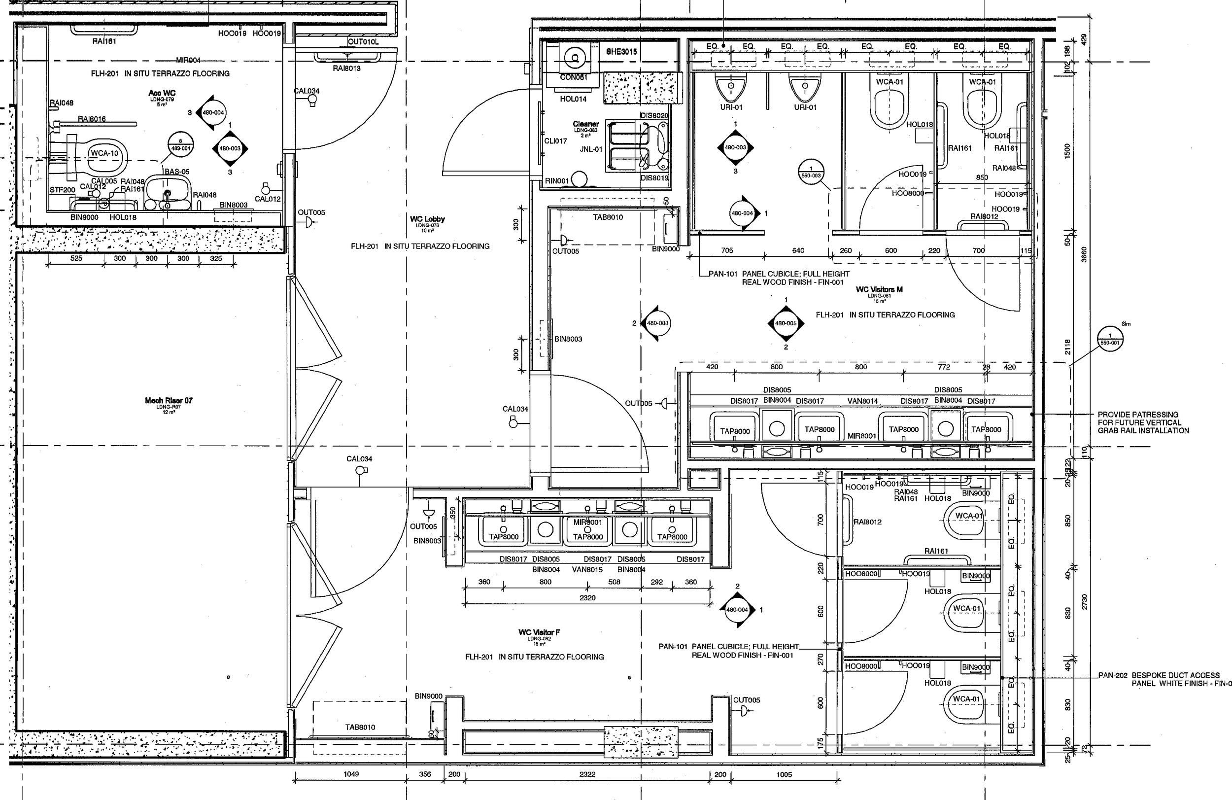
The BRIEF

Planning Permission for change of use: conversion from Office to Healthcare.

Full design & technical drawings until Tender for all non-medical spaces of a converted 200-room ‘PATIENT-CENTRIC’ global private hospital

My ROLE

Within the PLP Architects team (in collaboration with HKS Architects for all medical spaces), responsible for Stage 4-5 Sanitary & Kitchen package:

Conceptual layouts, full design & detailing through to Tender, Lighting design & Electro-mechanical coordination, with full specification of sanitary ware in compliance with Healthcare Design Regulations & Health Building Notes (HBN's) for:

  • All prototypes of Patient room ensuites

  • All Visitor, Patient & Staff toilets and accessible toilets

  • Visitor, Patient & Staff shower rooms

  • All Staff lounges/ Consultant lounges, inclusive of bespoke kitchenettes and layouts

  • Staff Changing rooms, lockers & shower areas

  • Patient Functional Assessment area

  • Spiritual Care Multi-faith prayer room, Muslim prayer room, bespoke ablution & auxiliary areas with bespoke joinery

  • Global Patients' office area —inclusive of bespoke joinery

Previous
Previous

Flexible-Living in Dubai

Next
Next

Injecting bold spaces